
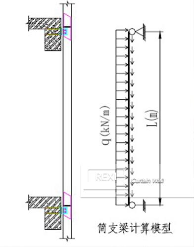
Alegerea suporturilor adecvate pentru peretele cortinei este crucială. Se folosesc două tipuri de bază de model de calcul: modelul simplu al fasciculului de susținere și modelul cu fascicul cu două raze.
REXI Industry poate proiecta mai multe tipuri de fațade cu pereți cortina pe cont propriu, iar fabrica noastră poate produce produse de sticlă și profiluri fabricate în China. În ceea ce privește procesul de proiectare a peretelui cortinei, proiectantul nostru are nevoie de suporturi de mulare la grinda structurală sau placă, care sunt constituite din suport de oțel și înglobare. Poziția suporturilor poate influența în mod important secțiunea de mullion, ceea ce poate influența costul materialului, pentru că secțiunea de muluri mari va fi scumpă, iar secțiunea de mullion mică va fi ieftină. Deci alegerea suporturilor corespunzătoare va fi foarte importantă. Există două tipuri principale de model de calcul. Primul este un model simplu de grindă de susținere în care fiecare etaj are un suport și partea superioară a mulului conectează partea inferioară a mulului folosind insert. Al doilea este un model de grindă cu două trepte în care fiecare etaj are două suporturi, iar partea superioară a muletului conectează partea inferioară a mulului folosind insert. Vă sugerăm să adoptați un model simplu de grindă de susținere atunci când înălțimea fiecărui etaj este scurtă și să adoptați un model de grindă pe două trepte, când înălțimea fiecărui etaj este foarte înaltă, iar grinda fiecărui etaj este de asemenea mare. În general, modelul cu două raze de protecție poate economisi costurile peretelui cortinei atunci când înălțimea etajului clădirilor este mare, deoarece acest model are o rezistență mai bună la momentul de îndoire.


Modelul simplu al fasciculului de sprijin Modelul cu fascicul pe două trepte
Tag-uri populare: Modelul de calcul al perdelelor de perete, China, furnizori, producători, fabrică, preț





